Address:
〒812-0016 福岡県福岡市博多区
博多駅南1丁目4−5 7F
Call:
092-292-5852
852-6487-2979
Fax:
092-292-5863
首頁
關於我們
專業服務
購買樓盤
物業管理
開設公司及經營管理簽顧問服務
代辦留學
日本不動産
感受福岡
最新消息
日本習俗
生活文化
市場動向
認識福岡
認識九州
Login
Get Appointment
Submit now
日本不動産
HAPPO CHOICES
Home
Properties
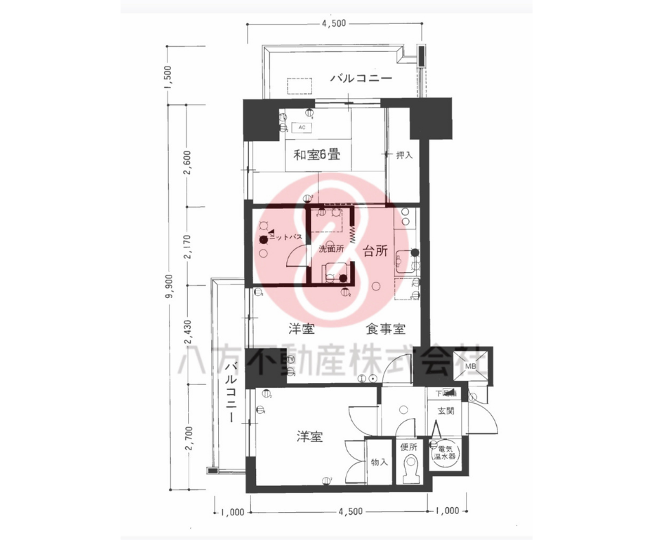
人氣商業購物中心附近2LDK物件
物業名稱
ライオンズマンション博多
地址
建築年份
1981[S56]年6月
戶型
2LDK
專有面積
47.5 m
2
陽台面積
10.17 m
2
建築物結構
SRC
管
理
費
6,340 円
修
繕
積
立
金
10,160 円
現況
入居者居住中;予定2026年夏季過戶
價格
1,900万円
交通
福岡市七隈線櫛田神社前駅 徒歩:4分
福岡市七隈線博多駅 徒歩:8分
福岡市空港線祇園駅 徒歩:9分
設備條件
大廈內設有2台昇降機;室內設有溫水洗淨便座、電氣熱水爐、雙露台(和室露台朝東、洋室露台朝北)
後記
Get Our Latest News
HAPPO CHOICES